こんにちは!あなたの街の不動産屋、奥山です
未公開物件ラッシュですが、弊社では常に未公開の物件情報がたくさんはいってきております
不動産ポータルサイトにも載っていない物件情報が随時ございますのでご相談だけでも構いません!
一度お問い合わせくださいませ
さて、本日の未公開物件はこちらっ!

鶴瀬駅徒歩6分閑静な住宅街に建築条件無し売地が出ました!
こちらの物件は弊社売主につき仲介手数料無料となっております✨
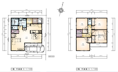
参考プラン、☝パースもご用意致しましたので是非ともご参考くださいませ

リビングは広々19帖浴室は大きい1坪タイプ(こだわりです笑)
2階も4つ居室を設け、ファミリーさんには嬉しい間取りを設計させていただきました!
日々の疲れをとってくれるお風呂は広くてゆったり1坪タイプで決まりです
実は浴槽の形なんかも選べるのです!わたくしの好きな形は半身浴タイプ

片方の向きで入れば全身浴、かたや反対ですと半身浴になる万能さん
水道代の節約にもなります✨
建売では選べない浴槽もこちらではフリープランで承ります!
条件無し売地ですのでお好きなハウスメーカーにて建築可能です
こちらの参考プランにて建築していただいたお客様にはお得な特典も付けちゃいます
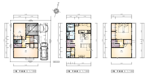
そして今回はなんと!
カースペース2台、4LDK、ルーフバルコニー付きのこちらのプランもご用意させていただきました!


☝こちらにルーフバルコニーがつきます
ルーフバルコニーで家庭菜園をするのも良し、BBQももちろんのこと、お子様用のプールだって出来ちゃいます
嬉しいカースペース2台ご自宅用と通勤用で2台置けるのもおススメポイントです!
価格等その他詳細はお電話にてご来店のご予約の上、弊社までお越しくださいませ
住宅ローンのご相談もお気軽にお問合せくださいませ。
お問い合わせの際には【ホームページをみた】とお伝えいただけますとスムーズです。
みなさまの大切なお買い物のサポートを全力でさせていただきます
担当 奥山
0120-90-1062 フリーダイヤル☎
070-3174-1215 担当直通




